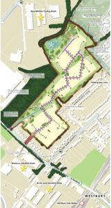
CONTROVERSIAL plans have been re-submitted for 200 houses on land off Storridge Road, Westbury – and those living near the proposed site say they still have concerns that Westbury’s infrastructure will not be able to cope with the additional houses.
The plans by Gladman Developments are to demolish houses 13 and 14 on Storridge Road, in order to give access to the proposed houses, which would number up to 200. The latest outline plans were submitted last month.
This will be the third time plans have been submitted by the developer following Wiltshire Council refusing planning permission in 2017 and 2019.
The plans were refused then on grounds that there was insufficient information regarding whether the site could accommodate 200 dwellings; the site is within boundaries of potential heritage assets with archaeological interest; and the noise assessments were insufficient.
The plans have been long protested by local residents and Westbury Town Council previously lodged its objection to the latest plans in a meeting held last October. The deadline for the consultation period was reached this week and a decision will be made by Wiltshire Council no later than 19th April.
David Jenkins lives at The Ham and has experience with dealing with the application as he was the Wiltshire councillor for the area from 2009 to 2019.
He says that the plans should be handed back to the developer as they have referenced out-of-date information.
Here we go again
“Here we go again”, said David. “Yet another planning application for more housing developments are being processed by Wiltshire Council in the Westbury area. Gladman Developments is one example.
“It’s the third time in less than six years they have applied to build 200 homes on land off of Storridge Road. Having experience in dealing with the two previous applications, in 2017 and 2019, this application should have in my view been returned to the applicant, requesting that it’s brought up to date. The 2011 census is referred to several times, such as in the transport assessment and the socio-economic benefits statement, when the latest census information was becoming available for 2021.
“Westbury is one of the most overdeveloped locations in Wiltshire. It currently exceeds its new homes to be delivered within the Westbury Community Area over the plan period 2006 – 2026 by 132% (that would have increased as the report is based as from April 2021). The requirement was for 1,500 delivered, but what’s been made available is 1,980 homes.
Overdevelopment and congestion
“The infrastructure and the sustainability in the area has not improved since the last application was submitted in 2019, it has actually deteriorated.
The local economy is fragile and the infrastructure hasn’t changed for years. The additional traffic flow, caused as a result of this development, will only result in more congestion, especially around the peak times when the trading estate and its associated traffic movements from the existing development on Station Road are completed.
“The applicant has made additional comments addressing the issues that Wiltshire Council raised as reasons for objection, however I consider not much has changed. I am not convinced that it’s sufficient to be approved.
“If you are concerned about the overdevelopment in the Westbury area, then I suggest you contact your local unitary councillor and MP and state your case. I know there is a housing shortage and homes are required, but what is happening in the Westbury area is no more than overdevelopment wildfire, that needs to be controlled.”





