A new housing development of up to 350 homes is being planned for land to the western edge of Westbury, with developers inviting local residents to provide feedback on the proposal.
The application, being prepared by Persimmon Homes, will cover land west of Mane Way, which has been allocated for housing in Wiltshire Council’s Local Plan. As part of the preparation for an outline planning application, Persimmon Homes is seeking input from the community to ensure local views are taken into account.
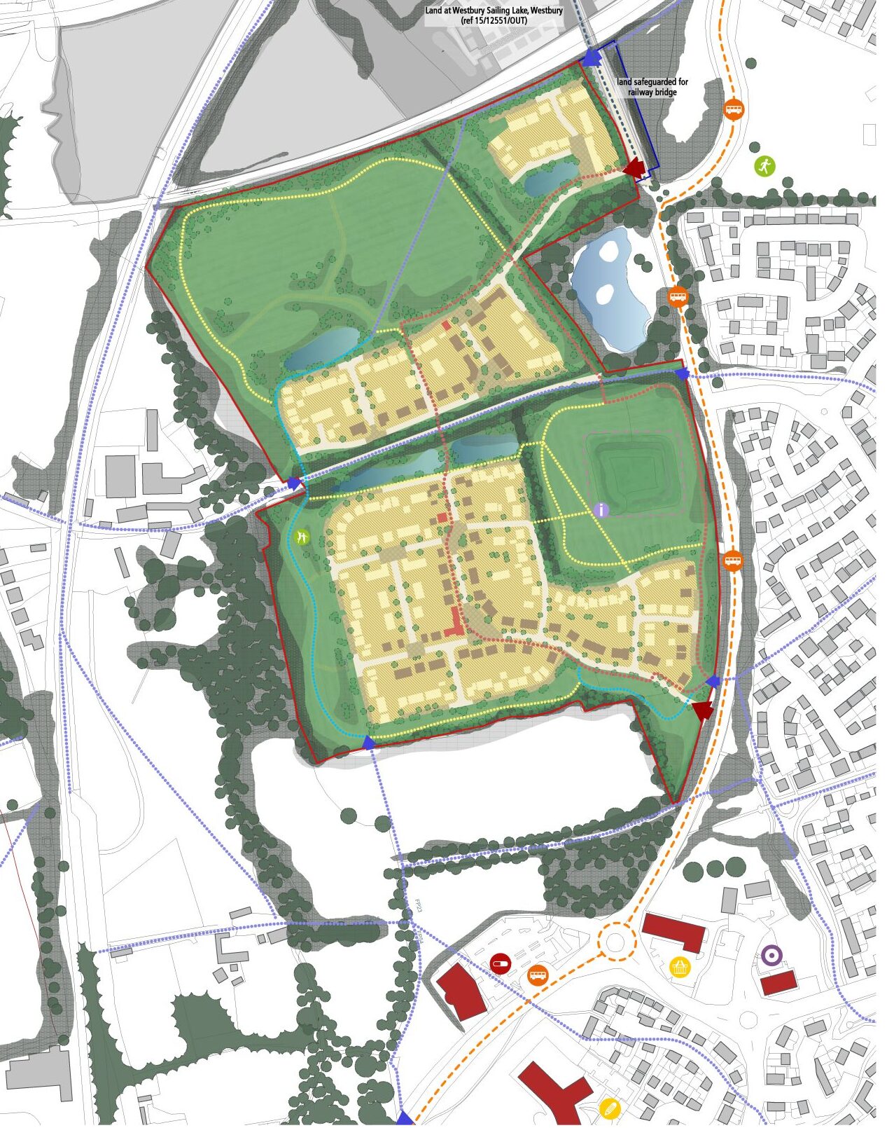
According to the developers, the plans for the development include, “Up to 350 dwellings, including affordable housing, with two dedicated vehicular accesses from Mane Way serving the northern and southern parcels. Extensive areas of public open space will be structured around new and existing hedgerow planting, alongside a network of pedestrian and cycle links to the surrounding area, incorporating all of the existing footpaths and bridleways on site.”
The proposed development will be split into two neighbourhoods, one to the north and one to the south of Penleigh Road. No road infrastructure is planned to cross this corridor, ensuring the two neighbourhoods remain distinct. Access to the site would be from Mane Way.
More than 50% of the site is designated as public open space. The proposed development includes several parks, green corridors and a children’s play area. Additionally, there will be a green buffer along Penleigh Road, along with incidental open spaces linking the development to Mane Way.
To have your say, visit https://manewaywestbury.com. Views need to be submitted by Sunday 9th February.
Below: Site plan of the proposed development







